指先の手触りが暮らしをやわらげる平屋
三重県いなべ市
I様

OUTLINE
竣工年月
2024年10月
延床面積
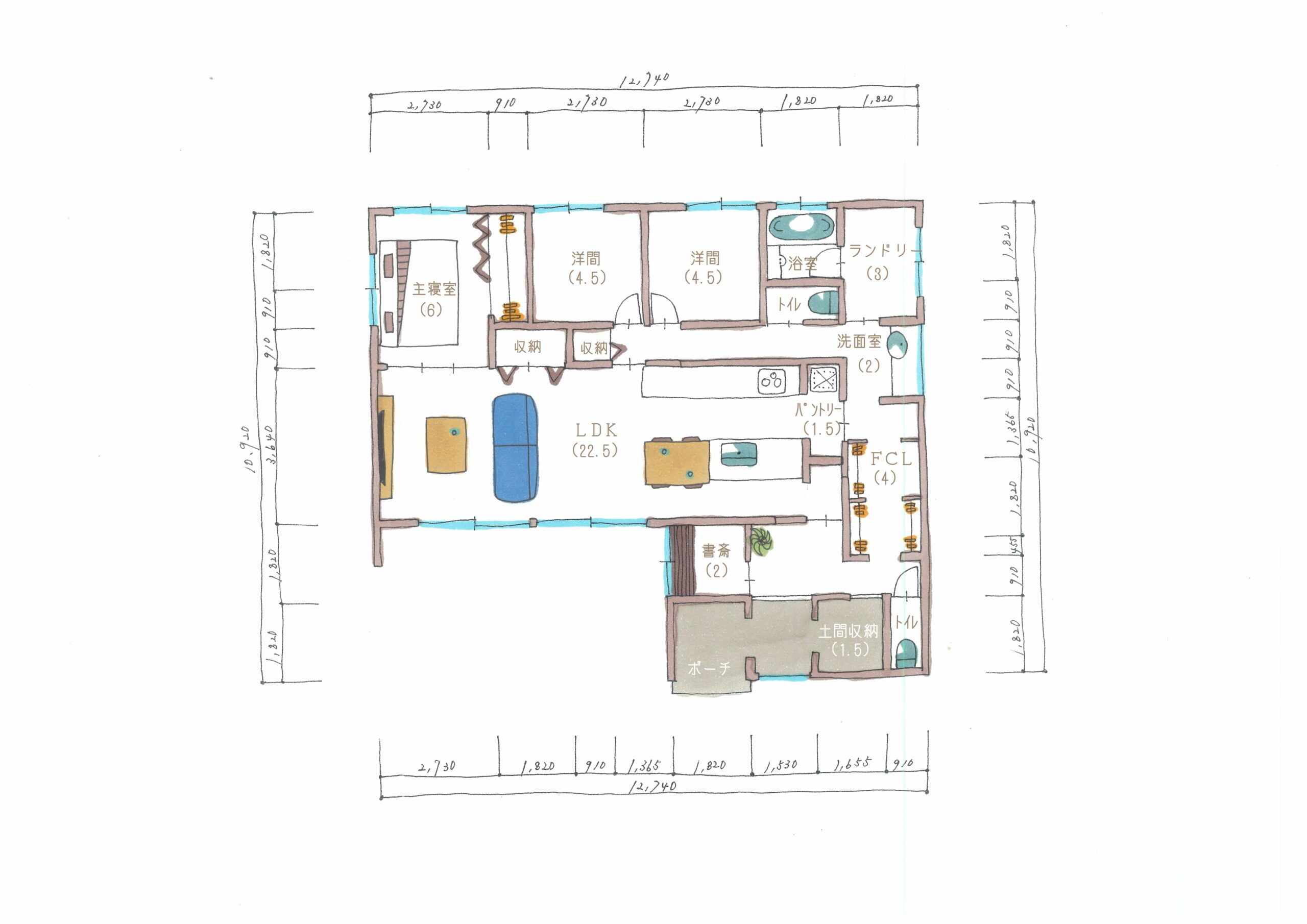
110.96㎡(33.56坪)
階数
1階建(平屋)
間取り
3LDK+書斎+ランドリー
本体価格
2500~3000万円(税込/当時)
リビング
-
ソファに腰かけた瞬間に感じる”暮らしの静けさ”をデザインしました。
フローリングはプレイリーホームズさんのオークの無垢材『ニューオーク(オスモオイル塗装-ブルックリンホワイト色)』です。
ダイニング
-
自然素材の温もりと淡いグレーでまとめた、家族の笑顔がいちばんに合う空間です。
キッチン
-
グラフテクトさんのⅡ型キッチン『デュエ』を採用。
異なる質感が、上品な雰囲気をつくります。
玄関
-
帰る場所の心地よさを作る、広々とした玄関。
LDKに繋がるドアはサンワカンパニー(ミラタップ)さんの『クアドロスリム』を使用し、抜け感を出しました。
書斎
-
玄関を入ってすぐ左手に、2畳の書斎を設置。
集中できる自分だけのスペースです。
主寝室
-
朝の光と木の香りで、すっきりとした朝が始まります。
洗面
-
アイカ工業さんのカウンターに、サンワカンパニー(ミラタップ)さんの洗面ボウル『Tエッジ』を組み合わせ、一面鏡はご支給いただきました。
ランドリー
-
無駄のない家事動線が、暮らしを軽くします。
トイレ
-
小さな空間ほど、美しく整えます。
写真ギャラリー
間取り
この事例を見た方は、
こちらも見ています
OTHER WORKS