繋がりを意識した、こだわりのデザイン住宅

OUTLINE
竣工年月
2024年11月
延床面積
109.72㎡(33.19坪)
階数
1階建(平屋)
間取り
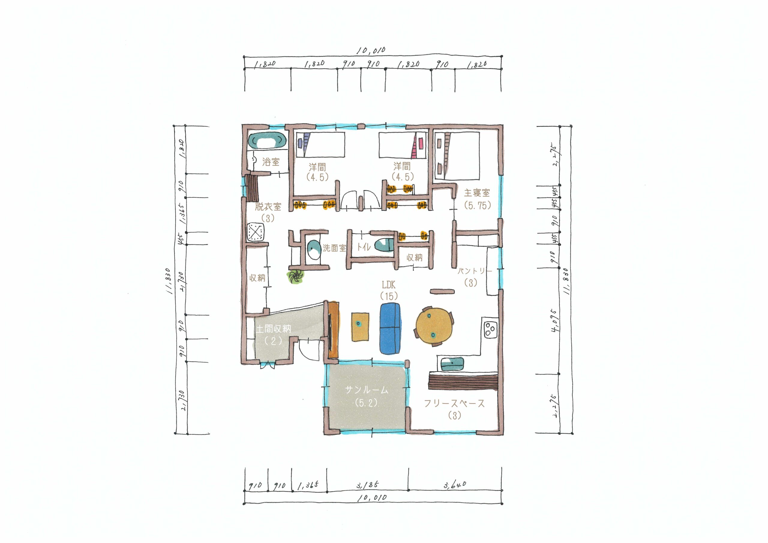
3LDK+フリースペース+サンルーム+ロフト
本体価格
2500~3000万円(税込/当時)
外観
-
外壁は塗り壁(AICA・ジョリパッド)。
陽光が射し込む大きな窓から見える景色は、四季折々の美しさを楽しむことができます。
リビング
-
お施主様こだわりのLDK!
勾配天井とホワイト系のフロアタイルで、さらに広々と感じられます。
キッチン
-
毎日の料理が一層楽しくなるグラフテクトのL型キッチン。
ダイニング
-
コンロからも流しからもアクセスが良く、
日々の食事はもちろん、おもてなしの場面にも最適です!
玄関
-
あえてドアを設置せず、LDKとの繋がりを感じられるように。
照明の下には、大きなミラーを設置予定です!
トイレ
-
シンプルながらも洗練されたデザイン。
リフレッシュ空間にぴったりな、爽やかな色のクロスを選ばれました♪
洗面
-
AICAのスマートサニタリーで造作風に。
ミラーはサンワカンパニー、
その隣には同じくサンワカンパニーのコスメキャビネットを設置。
名古屋モザイクのタイルを合わせました。
お風呂
-
お風呂はTOTOのサザナをチョイス!
グレー×ブラックで、高級感と落ち着きのある空間になりました。
ランドリー
-
ヘリンボーンのクッションフロアで温かみを感じられながらも
ブラックを効かせてスタイリッシュな雰囲気に…!
主寝室
-
収納付きの小上がりを設けることで、
直接マットレスを置いて、部屋全体をベッドのように使えます!
和室
-
サンルームの上部にはロフトを作りました。
畳敷きになっているのでごろごろタイムが捗ります!
土間収納
-
約2畳の土間収納には、シューズ・コート・アウトドア用品など
さまざまなアイテムをすっきり収めることができます◎
パントリー
-
シンプルで大容量のパントリースペース。
取り外しも可能な可動棚が7枚×2列設置してあるので、
置くものやケースの大きさに合わせた自由なレイアウトが可能です。
写真ギャラリー
間取り
実際に建てられたお客様の声
INTERVIEW
この事例を見た方は、
こちらも見ています
OTHER WORKS