理想を叶えるデザイン

DESIGN

理想を叶えるデザイン 理想を叶えるデザイン

お客様の好み、ライフスタイルに
そっと寄り添うデザイン・設計を

サティスホームは、お客様の理想の暮らしをデザイン・設計でカタチにすることを強みとしています。
まずはお客様の理想の暮らしをお聞かせください。

お客様との対話で叶える
理想にフィットするデザイン

お客さんと話し合いをする男性スタッフ

サティスホームは、「こういうデザインで行きましょう!」と
こちらの好みのデザインをご提案するのではなく、
しっかりとお客様と対話を重ねることで
お客様のお好みに合わせたデザインを作っていきます。
「自分では決められない」という方は、
「こういう雰囲気でオシャレに」とお任せいただいても大丈夫です!

お客さんと話し合いをする男性スタッフ
  • 白を基調としたホテルライクなリビング
  • 白を基調としたホテルライクなリビング
  • 白を基調としたホテルライクなリビング
  • 白を基調としたホテルライクなリビング
  • 白を基調としたホテルライクなリビング
  • 白を基調としたホテルライクなリビング
  • 1/3

    ゆったりした時間が流れる
    ホテルライクな暮らし

    白を基調としたフロアタイルでホテルのような洗練されたデザインに仕上げています。 kitchen studio Carraraのシックなキッチン、海外から取り寄せた石材で壁面を仕上げた玄関、フルオーダーの造作洗面など、上質な時間が流れるような空間づくりをしました。

  • 2/3

    自然光をたくさん取り入れたナチュラルテイストな平屋

    木の温かみを感じる無垢材の床を使用したナチュラルテイストに仕上げています。 勾配天井と、自然光がたくさん入る窓のおかげで明るく開放的な空間に。観葉植物の緑もよく映えるデザインになっています。

  • 3/3

    繋がりを意識した、こだわりのデザイン住宅

    ホワイト系のフロアタイルなどをベースに、爽やかな水色のクロスをアクセントにして、シンプルで洗練されたデザインに仕上げました。 LDKは勾配天井や大きな窓を施すことで開放的な空間に。扉も極力排除することで各部屋との繋がりを感じる工夫もしています。

一人ひとりのライフスタイルに
寄り添った
こだわりの導線

大きな窓から陽の光が入る広いナチュラルモダンなリビング

間取り・設計といっても一人ひとり理想のカタチは違います。
お客様のライフスタイルをヒアリングして反映するだけでなく、お客様が本当に望んでいることを引き出し、家づくりのプロとしての意見も交えながら理想の暮らしをカタチにしていきます。

大きな窓から陽の光が入る広いナチュラルモダンなリビング

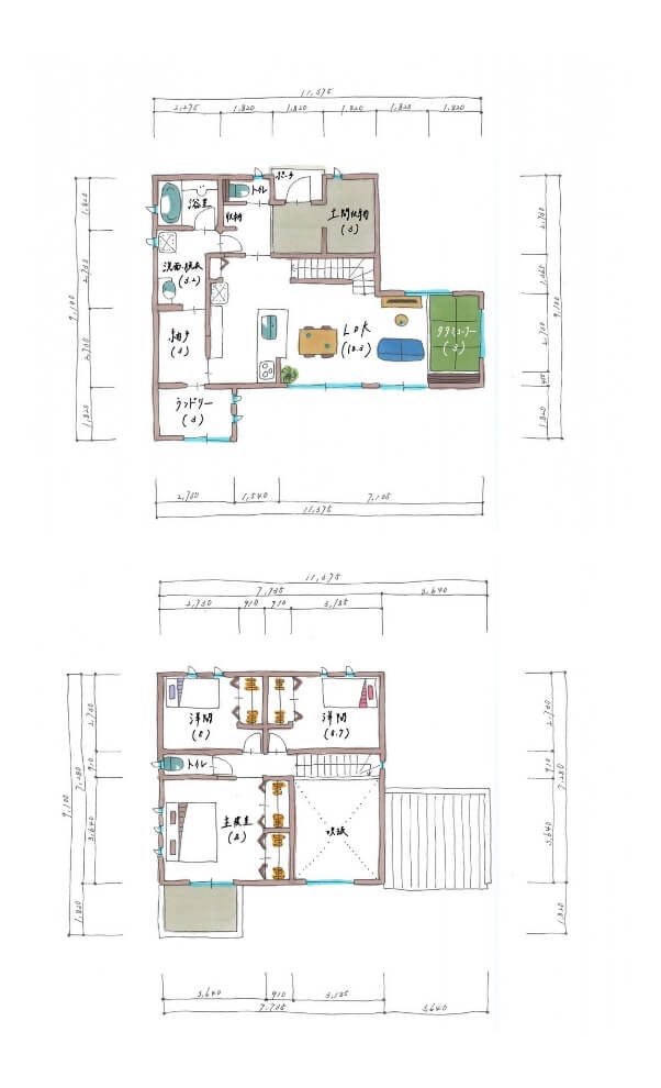
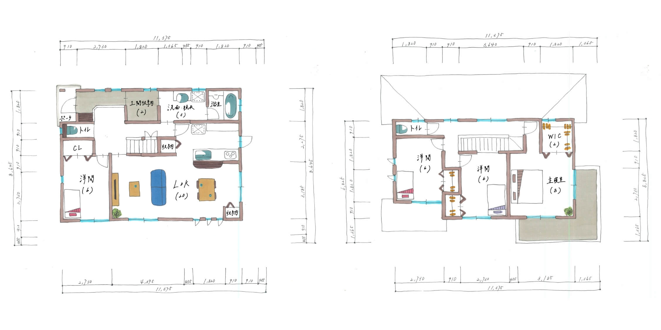
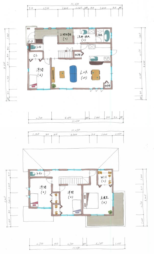
間取り事例

  • 平屋3LDK

  • 二階建て3LDK

  • 二階建て4LDK

サティスホームが建てる家について
興味を持たれた方は
サティスホームの家づくり事例を
ぜひご覧ください。

サティスホームが建てる家について
興味を持たれた方は
サティスホームの現場見学会、
または無料相談会へお越しください。